Creating Excellence.
3201 Cuthbert.

About the Property

Developing the Future

Seated at the heart of Philadelphia’s life sciences community, 3201 Cuthbert is perfectly positioned and equipped to support discovery, collaboration, and innovation in the field, with the most robust life sciences infrastructure in the region.

Designed by world-renowned Robert A.M. Stern Architects and targeting LEED Gold Certification
1
Located at the heart of Philadelphia’s life sciences community
2
519,647 RSF, 11 stories, 50,000+ RSF of floor plates, & expanded floor-to-floor heights of 16-24 FT
3
Abundant outdoor tenant spaces
4
Convenient to Amtrak’s 30th Street Station, SEPTA’s Market-Frankford Line and the region’s highway network
5
Plans & Specifications

Flexible Floorplans to Accelerate Success

Select each level to explore different specifications and floorplans. Download the floorplans to save or print them for a closer look.

Level 0

6 fully enclosed loading docks
5 service elevators
3,000 SF of usable storage area
Indoor bike storage, 80 bicycles
Main lobby entrance on Cuthbert Street
Entrance to underground parking
Download Floorplan

Typical Single Tenant Layout

54,326 rentable SF
194 lab benches
155 work stations
5 private offices
7 collaboration/ conference spaces
38 fume hoods
14 lab support spaces
Download Floorplan

Level 1

Office lab space is unavailable
10,000 SF of retail space
Lobby entrance from 33rd Street
Download Floorplan

Level 2

Currently unavailable
58,891 rentable SF
Download Floorplan

Level 3

Currently unavailable
56,912 rentable SF
Download Floorplan

Level 4

55,650 rentable SF
17-foot floor-to-floor height
2,700 SF outdoor terrace
33 x 33 feet column grid, specifically designed for lab planning
Ample service elevators
Ample tenant shaft space
Download Floorplan

Level 5

53,228 rentable SF
16-foot floor-to-floor height
33 x 33 feet column grid, specifically designed for lab planning
Ample service elevators
Ample tenant shaft space
Download Floorplan

Level 6

54,326 rentable SF
16-foot floor-to-floor clear height
Outdoor terrace
33 x 33 feet column grid, specifically designed for lab planning
Ample service elevators
Ample tenant shaft space
Download Floorplan

Level 7

54,947 rentable SF
16-foot floor-to-floor clear height
Two outdoor terraces
33 x 33 feet column grid, specifically designed for lab planning
Ample service elevators
Ample tenant shaft space
Download Floorplan

Level 8

55,490 rentable SF
16-foot floor-to-floor clear height
Outdoor terrace
33 x 33 feet column grid, specifically designed for lab planning
Ample service elevators
Ample tenant shaft space
Download Floorplan

Level 9

56,198 rentable SF
24-foot floor-to-floor clear height
Two outdoor terraces
33 x 33 feet column grid, specifically designed for lab planning
Ample service elevators
Ample tenant shaft space
Download Floorplan

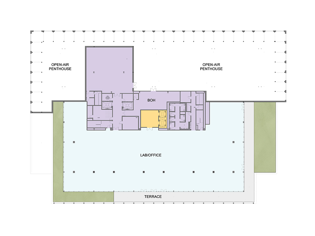
Level 10

Mechanical floor
Download Floorplan

Level 11

24,969 rentable SF
Download Floorplan

High End Amenities

Designed for World-Class Science

At 3201 Cuthbert Street, you’ll find all the amenities an innovative life sciences company needs to succeed.

Six fully enclosed loading docks & five service elevators with up to 8,000 LB capacity

Best practice chemical storage space & pH neutralization capability

Generous space for tenant equipment & vertical shaft infrastructure

15 watts/SF power for lab areas with significant emergency back-up power

HVAC can be up to a 70% lab to 30% office split, with 2.0 CFMs/SF for lab areas and 6.3 CFMs/SF for cGMP areas

Lab/office floor loading capacity of up to 175 LBS/SF, including finishes

Excellent vibration criteria of up to 2,000 MIPS

Building can accommodate cGMP manufacturing and vivarium with supplemental HVAC

Capacity to accommodate bulk process gases

Cuthbert Walk provides a lush, landscaped park environment with places to gather and flexible seating

Outdoor access from private terraces

Secure indoor bicycle storage, locker rooms and showers

Underground car parking is available

Ground level food and beverage options will provide a valuable amenity to the building and neighborhood

The Community

In the Center of
the Action

The largest life sciences property in Philadelphia, 3201 Cuthbert Street sits opportunistically at the center of the growing University City life sciences district within Drexel’s campus.

  • Located in the Heart of University City’s life sciences district
  • More than 10% of the world’s cell and gene therapy companies are based in Philadelphia
  • Between 2019-2024, Philadelphia life sciences companies secured more than $6.5 billion in life sciences venture capital funding, the eighth-highest amount in the world
  • Greater Philadelphia maintained its spot as the #4 life science market in the United States, according to EConsult Solutions’ July 2025 report “City of Philadelphia: A National Life Sciences Leader
The Community

In the Center of
the Action

Location

Ultimate Access

  • The major institutions in proximity to the site include:
  • Drexel University
  • University City Science Center
  • Penn Presbyterian Medical Center
  • CHOP
  • Penn Medicine
  • University of Pennsylvania
  • There are dozens of life sciences companies within a 0.5 mile radius of the site, including:
    • Spark Therapeutics
    • GSK
    • Amicus Therapeutics
    • Century Therapeutics
    • Charles River Labs
    • AskBio
    • Avid Radiopharmaceuticals
    • Tmunity
    • Carisma Therapeutics
  • The major transit stops in proximity to the site include:
  • 33rd Street Trolley Station
  • Septa 30th Street Station
  • Amtrak/30th Street Station
  • Septa 36th Street Station
  • Septa 34th Street Station
Select Category
Amtrak / Regional Rail Lines
Market-Frankford Highspeed Line
Trolley Lines
Broad Street Line
PATCO
Walk Times From 3201 Cuthbert Street:
30th Street Station – 4 Minutes
Drexel University – 1 Minute
University of Pennsylvania – 6 Minutes
Drive Time From 3201 Cuthbert Street:
PHL International Airport – 18 Minutes
photos

Step Inside

Carousel image 03
Carousel image 01
Carousel image 01
Carousel image 04
Carousel image 05
Carousel image 06
Carousel image 07
Carousel image 08
Meet the Team

About Gattuso Development Partners

Gattuso Development Partners is a developer of exceptional, sustainable high-performance workplaces. We recognize that the right work environment is the most critical asset a business can offer to attract, retain, and inspire its employees and promote long term success.

To learn more, visit out website

Meet the Team

About Vigilant
Real Estate Holdings

Founded in 2020, Vigilant Real Estate Holdings is a real estate investment firm focused on acquiring, developing, and operating strategic and diversified assets across the United States. The firm currently owns or controls more than one million square feet of industrial, manufacturing, and life science real estate in core markets nationwide.

To learn more, visit our website

Contact

Get in Touch